店舗事務 - さいたま市緑区「東浦和」駅 徒歩15分
事業用物件
| 所在地 | 埼玉県さいたま市緑区東浦和8丁目 | 交通 | JR武蔵野線 「東浦和」駅 徒歩15分 |
|---|---|---|---|
| 土地権利 | 所有権 | 地目 | 宅地 |
| 土地面積 | 165.93m² | 私道面積 | |
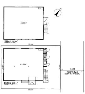
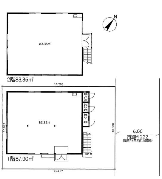
| 建物構造 | 鉄骨造 | 階建/所在階 | 地上2階 |
| 建物面積 | 171.25m² | バルコニー面積 | |
| 専有面積 | 間取り | ||
| 築年月 | 平成22年2月 | 総戸数 | |
| 都市計画 | 市街化区域 | 用途地域 | 第一種中高層住居専用地域 |
| 建ぺい率/容積率 | 60%/200% | 接道 | 東側6m公道 |
| 管理費 | 施工会社 | ||
| 修繕費 | 管理会社 | ||
| 現況 | 空室 | 管理形態 | |
| 引き渡し時期 | 相談 | 取引態様 | 仲介 |
| 設備 | |||
| 特記事項 | |||
| 備考 | |||
| 物件番号 | 01330 | 情報登録日 | 2026年04月21日 |



















