アパート - さいたま市西区「大宮」駅
投資用物件
| 所在地 | 埼玉県さいたま市西区飯田 | 交通 | JR京浜東北線 「大宮」駅 バス10分 停歩2分 |
|---|---|---|---|
| 土地権利 | 所有権 | 地目 | 宅地 |
| 土地面積 | 2112.42m² | 私道面積 | |
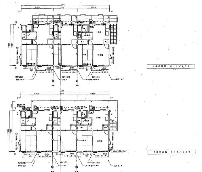
| 建物構造 | 軽量鉄骨造 | 階建/所在階 | 地上2階 |
| 建物面積 | 233.82m² | バルコニー面積 | |
| 専有面積 | 間取り | 2DK | |
| 築年月 | 平成6年3月 | 総戸数 | 6戸 |
| 都市計画 | 市街化調整区域 | 用途地域 | |
| 建ぺい率/容積率 | 60%/200% | 接道 | 北側約8.5m公道 |
| 管理費 | 施工会社 | ||
| 修繕費 | 管理会社 | ||
| 現況 | 賃貸中 | 管理形態 | |
| 引き渡し時期 | 相談 | 取引態様 | 仲介 |
| 設備 | |||
| 特記事項 | 戸建/木造瓦葺2階建/平成21年3月築/186.52平米/オール電化/地目一部雑種地 | ||
| 備考 | |||
| 物件番号 | 01328 | 情報登録日 | 2026年04月04日 |



















