売ビル - 川口市「蕨」駅 徒歩2分
投資用物件
| 所在地 | 埼玉県川口市芝新町 | 交通 | JR京浜東北線 「蕨」駅 徒歩2分 |
|---|---|---|---|
| 土地権利 | 所有権 | 地目 | |
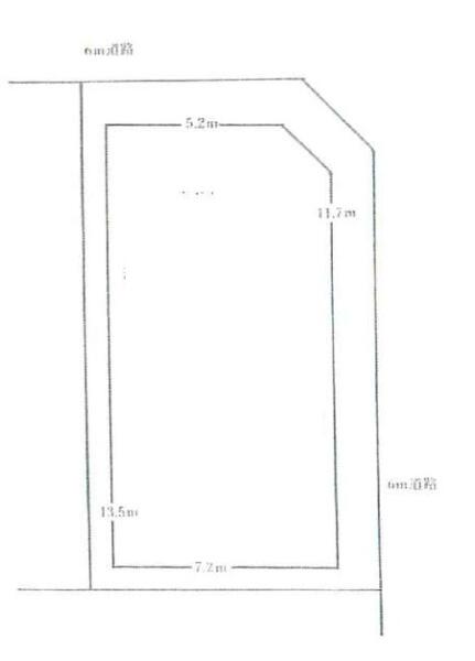
| 土地面積 | 139.4m² | 私道面積 | |
| 建物構造 | 鉄筋コンクリート造 | 階建/所在階 | 地上3階 |
| 建物面積 | 311.76m² | バルコニー面積 | |
| 専有面積 | 間取り | ||
| 築年月 | 1966年6月 | 総戸数 | |
| 都市計画 | 市街化区域 | 用途地域 | 商業地域 |
| 建ぺい率/容積率 | 80%/400% | 接道 | 北6m公道、東6m公道 |
| 管理費 | 施工会社 | ||
| 修繕費 | 管理会社 | ||
| 現況 | 賃貸中 | 管理形態 | |
| 引き渡し時期 | 相談 | 取引態様 | 仲介 |
| 設備 | |||
| 特記事項 | 契約不適合責任免責、 | ||
| 備考 | |||
| 物件番号 | 01310 | 情報登録日 | 2025年10月26日 |



















