一棟売マンション - 川口市「西川口」駅 徒歩10分
投資用物件
| 所在地 | 埼玉県川口市西川口4丁目 | 交通 | JR京浜東北線 「西川口」駅 徒歩10分 |
|---|---|---|---|
| 土地権利 | 所有権 | 地目 | |
| 土地面積 | 115.7m² | 私道面積 | |
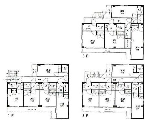
| 建物構造 | 鉄骨造 | 階建/所在階 | 地上3階 |
| 建物面積 | 200.13m² | バルコニー面積 | |
| 専有面積 | 間取り | ||
| 築年月 | 198年9月 | 総戸数 | 14戸 |
| 都市計画 | 市街化区域 | 用途地域 | 工業地域 |
| 建ぺい率/容積率 | 60%/200% | 接道 | 北西6.4m公道 |
| 管理費 | 施工会社 | ||
| 修繕費 | 管理会社 | ||
| 現況 | 賃貸中 | 管理形態 | |
| 引き渡し時期 | 相談 | 取引態様 | 仲介 |
| 設備 | エアコン , ロフト付き , 都市ガス | ||
| 特記事項 | 現況有姿、契約不適合責任免責、 | ||
| 備考 | |||
| 物件番号 | 01302 | 情報登録日 | 2025年09月27日 |



















