アパート - 川口市「鳩ヶ谷駅」駅 徒歩10分
投資用物件
| 所在地 | 埼玉県川口市辻 | 交通 | 埼玉高速鉄道 「鳩ヶ谷駅」駅 徒歩10分 |
|---|---|---|---|
| 土地権利 | 所有権 | 地目 | 宅地 |
| 土地面積 | 247.58m² | 私道面積 | |
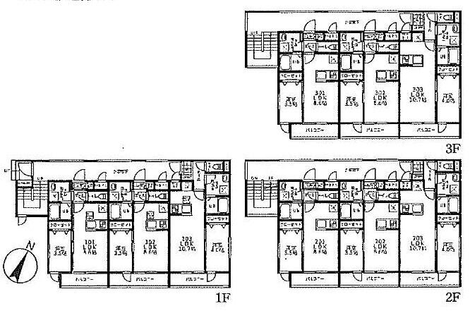
| 建物構造 | 木造 | 階建/所在階 | 地上3階 |
| 建物面積 | 337.06m² | バルコニー面積 | |
| 専有面積 | 間取り | ||
| 築年月 | 2025年9月 | 総戸数 | 9戸 |
| 都市計画 | 市街化区域 | 用途地域 | 第一種住居地域 |
| 建ぺい率/容積率 | 60%/200% | 接道 | 西8.7m公道、南4m公道 |
| 管理費 | 施工会社 | ||
| 修繕費 | 管理会社 | ||
| 現況 | 空室 | 管理形態 | |
| 引き渡し時期 | 相談 | 取引態様 | 仲介 |
| 設備 | バス・トイレ別 | ||
| 特記事項 | |||
| 備考 | |||
| 物件番号 | 01301 | 情報登録日 | 2025年09月22日 |



















