売ビル - 荒川区「西日暮里」駅 徒歩9分
投資用物件
| 所在地 | 東京都荒川区西日暮里6丁目 | 交通 | JR山手線 「西日暮里」駅 徒歩9分 |
|---|---|---|---|
| 土地権利 | 所有権 | 地目 | |
| 土地面積 | 111m² | 私道面積 | |
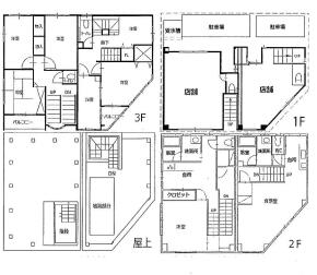
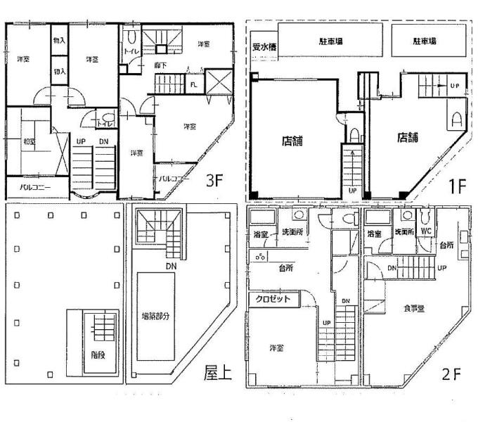
| 建物構造 | 鉄骨造 | 階建/所在階 | 地上3階 |
| 建物面積 | 235.56m² | バルコニー面積 | |
| 専有面積 | 間取り | ||
| 築年月 | 1993年3月 | 総戸数 | 4戸 |
| 都市計画 | 市街化区域 | 用途地域 | 近隣商業地域 |
| 建ぺい率/容積率 | 80%/300% | 接道 | 西側公道、南側公道 |
| 管理費 | 施工会社 | ||
| 修繕費 | 管理会社 | ||
| 現況 | 賃貸中 | 管理形態 | |
| 引き渡し時期 | 相談 | 取引態様 | 仲介 |
| 設備 | |||
| 特記事項 | 引渡しは契約後3か月 | ||
| 備考 | |||
| 物件番号 | 01297 | 情報登録日 | 2025年09月21日 |



















